Beschrijving

Aan een rustige en prettige locatie in Capelle aan den IJssel bevindt zich deze goed ingedeelde maisonnette met een zonnig terras op het zuidwesten, een eigen berging én een vaste overdekte parkeerplaats. Een comfortabele woning met een speelse indeling en veel lichtinval.

De begane grond beschikt over een ruime slaapkamer, een nette badkamer en trapkast. De badkamer is voorzien van een toilet, inloopdouche en wastafelmeubel. Via de trapopgang bereik je de woonverdieping. 

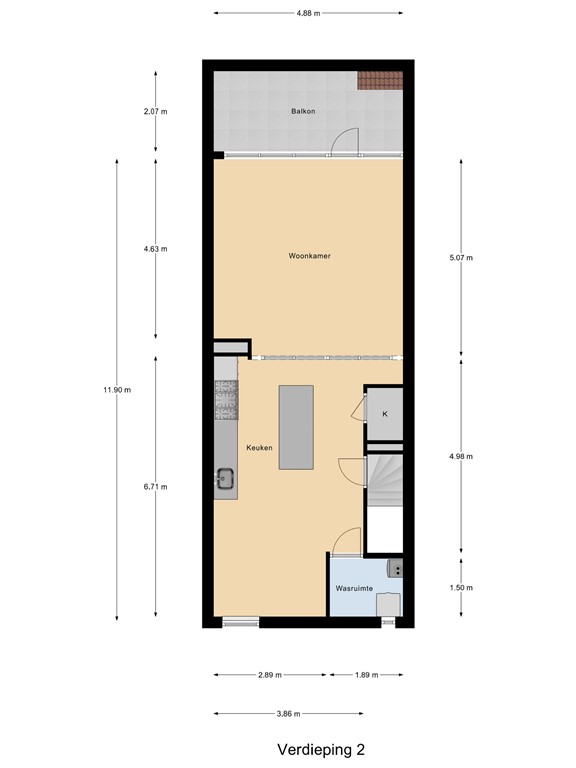
Op de verdieping bevindt zich de royale woonruimte. Het plafond in het zitgedeelte is maar liefst 4.4 meter hoog wat een bijzonder ruimtelijk gevoel geeft. Dankzij de grote en vele raampartijen geniet de woonkamer van een aangename hoeveelheid daglicht. De open keuken met bar vormt het centrale punt van de ruimte en biedt volop werk- en opbergruimte. De keuken is voorzien van inbouwapparatuur zoals een vaatwasser, koelkast, combi-oven, 5-pits gaskookplaat en afzuigkap. De woonkamer beschikt tevens over een wasruimte voorzien van de witgoedaansluiting en Remeha C.V.-ketel 2009. Op de woonverdieping is eventueel nog ruimte om een tweede slaapkamer te creëren. 

Vanuit de woonkamer is het zonnige terras bereikbaar. De ligging op het zuidwesten zorgt ervoor dat u hier optimaal profiteert van de middag- en avondzon – een heerlijke plek om te ontspannen.

De woning beschikt bovendien over een eigen berging, ideaal voor fietsen en extra opslag, en een eigen vaste parkeerplaats onder carport. 

Kortom: een goed onderhouden en praktisch ingedeelde maisonnette met buitenruimte, berging en parkeerplaats, gelegen op een fijne locatie in Capelle aan den IJssel, op loopafstand van metro en winkelcentrum De Terp en natuurgebied Hitland. Een woning die zeker een bezichtiging waard is.

Bijzonderheden:
• Bouwjaar: 1980
• Woonoppervlakte circa 84 m2 
• Balkon (zuidwesten) circa 10 m2
• Eigen parkeerplaats en berging
• Energielabel C
• Verwarming middels C.V.-ketel Remeha 2009
• Volledig voorzien dubbele beglazing
• Bijdrage V.v.E. € 213,43 per maand.
• In de directe omgeving zijn alle dagelijkse voorzieningen te vinden zoals winkels, openbaar vervoer, diverse uitvalswegen en recreatiemogelijkheden
• Oplevering in overleg.

Deze woning heeft een eigen unieke woningwebsite. Download de brochure voor de link naar de website waar u alle gegevens van de woning kunt vinden.


Deze presentatie is met zorg samengesteld. Desondanks kunnen aan deze presentatie geen rechten worden ontleend. Daarnaast aanvaardt de makelaar of zijn opdrachtgever geen aansprakelijkheid voor de in de presentatie verstrekte informatie. Mocht de presentatie vragen oproepen, dan nodigen wij u van harte uit deze onder onze aandacht te brengen.

Koopovereenkomst pas rechtsgeldig na ondertekening:
Een mondelinge overeenstemming tussen de particuliere verkoper en de particuliere koper is niet rechtsgeldig. Met andere woorden: er is geen koop. Er is pas sprake van een rechtsgeldige koop als de particuliere verkoper en de particuliere koper de koopovereenkomst hebben ondertekend. Dit vloeit voort uit artikel 7:2 Burgerlijk Wetboek. Een bevestiging van de mondelinge overeenstemming per e-mail of een toegestuurd concept van de koopovereenkomst wordt overigens niet gezien als een 'ondertekende koopovereenkomst'.

Toelichtingsclausule NEN2580:
De Meetinstructie is gebaseerd op de NEN2580. De Meetinstructie is bedoeld om een meer eenduidige manier van meten toe te passen voor het geven van een indicatie van de gebruiksoppervlakte. De Meetinstructie sluit verschillen in meetuitkomsten niet volledig uit, door bijvoorbeeld interpretatieverschillen, afrondingen of beperkingen bij het uitvoeren van de meting.

Kenmerken