Beschrijving

144 m² wonen in hartje historisch Gouda – met balkon én dakterras-potentie

Midden in de bruisende binnenstad, maar verrassend rustig wonen? Dit royale appartement van maar liefst 144 m² biedt ruimte, licht en flexibiliteit, verdeeld over twee woonlagen – een zeldzaamheid op deze locatie.

Pluspunten van de woning:
- Ruim en licht appartement verdeeld over twee woonlagen
- Balkon én de mogelijkheid tot het realiseren van een groot dakterras
- In totaal drie slaapkamers
- Praktische indeling met veel bergruimte
- Gelegen op een fijne locatie in Gouda

De indeling is als volgt:
Begane grond
Via de eigen entree op de begane grond kom je binnen in de hal, met ruimte voor een garderobe en toegang tot de trap naar de woonverdiepingen.

Eerste verdieping
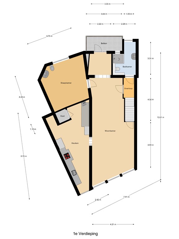
Op de eerste verdieping bevindt zich de badkamer, praktisch ingedeeld en voorzien van de benodigde sanitaire voorzieningen zoals een douchehoek, wastafel en toilet.
Daarnaast tref je hier de grote lichte woonkamer van ruim 40m², waar grote ramen zorgen voor een prettige lichtinval. Vanuit de woonkamer heb je toegang tot het balkon.
De grote woonkeuken van circa 20m² is functioneel opgesteld en biedt voldoende werk- en kastruimte. Voorzien van een koel-vriescombinatie, afzuigkap, vaatwasser, dubbele spoelbak en keramische kookplaat. Aangrenzend bevindt zich een vaste kast, ideaal voor extra opslag.
Op deze verdieping ligt tevens een grote slaapkamer van circa 20m², geschikt als hoofdslaapkamer of bijvoorbeeld als werk- of logeerkamer.

Tweede verdieping
De tweede verdieping beschikt over twee slaapkamers, beide met een prettige maatvoering en volop mogelijkheden voor slapen, werken of hobby’s.
Daarnaast is hier ruimte aanwezig voor het nog te realiseren dakterras van ruim 30m² – een geweldige kans om een extra buitenruimte te creëren. 

Bijzonderheden:
- Eigen grond
- Bouwjaar circa 1800
- Woonoppervlakte: 144m2
- Bijdrage VvE € 170,- per maand 
- Energielabel: E
- Extra clausules in de koopakte; verkoper heeft de woning nooit bewoond, ouderdomsclausule, 
- Oplevering per direct



Deze presentatie is met zorg samengesteld. Desondanks kunnen aan deze presentatie geen rechten worden ontleend. Daarnaast aanvaardt de makelaar of zijn opdrachtgever geen aansprakelijkheid voor de in de presentatie verstrekte informatie. Mocht de presentatie vragen oproepen, dan nodigen wij u van harte uit deze onder onze aandacht te brengen.

Koopovereenkomst pas rechtsgeldig na ondertekening:
Een mondelinge overeenstemming tussen de particuliere verkoper en de particuliere koper is niet rechtsgeldig. Met andere woorden: er is geen koop. Er is pas sprake van een rechtsgeldige koop als de particuliere verkoper en de particuliere koper de koopovereenkomst hebben ondertekend. Dit vloeit voort uit artikel 7:2 Burgerlijk Wetboek. Een bevestiging van de mondelinge overeenstemming per e-mail of een toegestuurd concept van de koopovereenkomst wordt overigens niet gezien als een 'ondertekende koopovereenkomst'.

Toelichtingsclausule NEN2580:
De Meetinstructie is gebaseerd op de NEN2580. De Meetinstructie is bedoeld om een meer eenduidige manier van meten toe te passen voor het geven van een indicatie van de gebruiksoppervlakte. De Meetinstructie sluit verschillen in meetuitkomsten niet volledig uit, door bijvoorbeeld interpretatieverschillen, afrondingen of beperkingen bij het uitvoeren van de meting.

Kenmerken