Beschrijving

Welkom in dit leuke appartement, perfect gelegen in het levendige Rotterdam Kralingen. Dit appartement MET LIFT ligt op de derde verdieping en is in 2022 volledig gerenoveerd. Verder geniet je hier van een ruime woonkamer en twee slaapkamers met veel lichtinval. Daarnaast zijn er twee balkons, zodat je op elk moment van de dag van de zon kan genieten.

De Lairesselaan ligt in een rustige, groene straat in Kralingen-West, of loopafstand van het Kralingse Bos en de Kralingse Plas. In de directe omgeving vindt je gezellige café's, restaurants en winkels aan de Oudedijk en Lusthofstraat. Ook het centrum van Rotterdam is binnen enkele minuten bereikbaar per fiets of openbaar vervoer. De wijk ligt gunstig ten opzichte van de Erasmus universiteit en diverse uitvalswegen.

De verdere indeling is als volgt;

Begane grond
Afgesloten entree, met aan de buitenzijde de brievenbussen en het bellentableau. De entree geeft toegang tot de lift, het trappenhuis en de bergingen. Het appartement beschikt over een eigen berging.

Derde verdieping
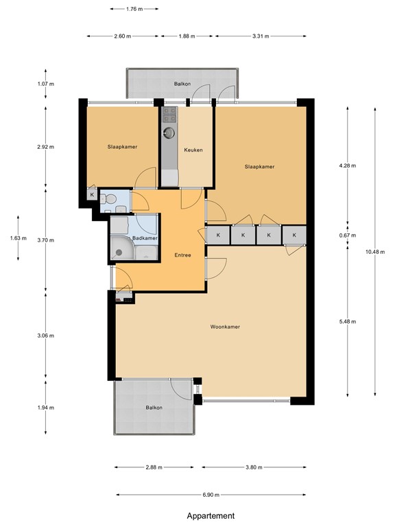
Entree, hal, vaste kast, toilet met fonteintje.
L-vormige, lichte woonkamer met laminaat vloer en openslaande deuren naar balkon ca. 2.00 x 3.00.
Moderne keuken voorzien van inbouwapparatuur zoals een inductiekookplaat, vaatwasmachine, combi-oven en koel-/vriescombinatie, alsmede deur naar 2e balkon op het westen.
Ruime slaapkamer met twee vaste kasten en deur naar 2e balkon op westen.
Moderne betegelde badkamer met douche en wastafelmeubel. 
Tweede slaapkamer met vaste kast.

Bijzonderheden:
- Bouwjaar: 1962
- Energielabel: B
- Woonoppervlakte: 75m2
- 2 balkons
- Geheel v.v. kunststof kozijnen met HR++ glas
- Grotendeels v.v. elektrische zonwering(screens)
- Actieve VvE, bijdrage: € 251,50 exclusief voorschot stookkosten van € 151,00
- Externe berging 
- Verwarming middels blokverwarming
- Lift aanwezig
- Oplevering in overleg (kan spoedig)





Deze presentatie is met zorg samengesteld. Desondanks kunnen aan deze presentatie geen rechten worden ontleend. Daarnaast aanvaardt de makelaar of zijn opdrachtgever geen aansprakelijkheid voor de in de presentatie verstrekte informatie. Mocht de presentatie vragen oproepen, dan nodigen wij u van harte uit deze onder onze aandacht te brengen.

Koopovereenkomst pas rechtsgeldig na ondertekening:
Een mondelinge overeenstemming tussen de particuliere verkoper en de particuliere koper is niet rechtsgeldig. Met andere woorden: er is geen koop. Er is pas sprake van een rechtsgeldige koop als de particuliere verkoper en de particuliere koper de koopovereenkomst hebben ondertekend. Dit vloeit voort uit artikel 7:2 Burgerlijk Wetboek. Een bevestiging van de mondelinge overeenstemming per e-mail of een toegestuurd concept van de koopovereenkomst wordt overigens niet gezien als een 'ondertekende koopovereenkomst'.

Toelichtingsclausule NEN2580:
De Meetinstructie is gebaseerd op de NEN2580. De Meetinstructie is bedoeld om een meer eenduidige manier van meten toe te passen voor het geven van een indicatie van de gebruiksoppervlakte. De Meetinstructie sluit verschillen in meetuitkomsten niet volledig uit, door bijvoorbeeld interpretatieverschillen, afrondingen of beperkingen bij het uitvoeren van de meting.

Kenmerken