Beschrijving

Te moderniseren 3/4-kamerappartement op de 5e verdieping van keurig verzorgd appartementengebouw met lift. De ligging van het appartement is zeer gunstig; dichtbij alle voorzieningen zoals winkelcentrum “Het Lage Land’’, “Woonmall Alexandrium’’, scholen en zorgvoorzieningen. Het Prinsenpark en het Kralingse Bos bevinden zich op loop- en fietsafstand, het openbaar vervoer (metro, bus en trein) en de uitvalswegen A16, A20 zijn binnen enkele minuten bereikbaar. Zo ben je al binnen 15 minuten in Rotterdam Centrum. 

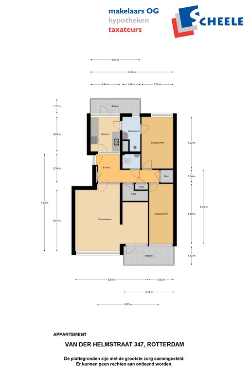
Indeling:
Begane grond:
Centrale afgesloten entree met liftinstallatie en toegang tot de bergingen.

5e verdieping:
Binnenkomst in ruimte hal met toilet en toegang tot de verschillende vertrekken. 
De dichte keuken met toegang tot het eerste balkon (Oosten) is voorzien van een eenvoudig keukenblok met een wasbak en boiler. Tevens vindt je in de keuken de aansluiting voor de wasmachine. Aan de andere zijde van het appartement bevindt zich de woonkamer met vrij uitzicht over de groene tuin. De eetkamer(of 3e slaapkamer) grenst aan de woonkamer en beschikt over een balkon gelegen op het Westen. 
Er zijn twee slaapkamers van ca. 11 m2 en 10 m2. Tussen de eerste slaapkamer en keuken in bevindt zich de badkamer. De badkamer is grotendeels betegeld en voorzien van een douche en wastafel.

Bijzonderheden:
• Bouwjaar 1966
• Woonoppervlakte 75 m2 
• Inhoud 248 m3
• Energielabel E
• Verwarming middels blokverwarming 
• Deels voorzien van dubbel glas 
• Bijdrage VvE € 239,26 per maand excl. voorschot stookkosten van €62,15 per maand
• In de koopovereenkomst worden een ouderdomsclausule en niet-zelfbewoningsclausule opgenomen
• In de directe omgeving zijn alle dagelijkse voorzieningen te vinden zoals winkels, openbaar vervoer, diverse uitvalswegen en recreatiemogelijkheden
• Oplevering in overleg(kan snel)

Kenmerken