Met een eigen account kun je panden volgen, opslaan als favoriet, je zoekprofiel opslaan en jouw eigen notities bij een huis maken.
Aanbod detail
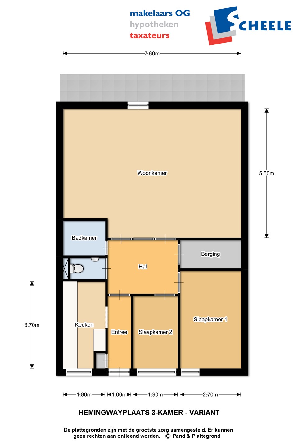
Te koop: Hemingwayplaats 126, 3068 WP Rotterdam
| Type object | Appartement, galerijflat |
| Woonoppervlakte | 83 m² |
| Aanvaarding | In overleg |
| Status | Nieuw in verkoop |
Algemeen
In de groene wijk Ommoord, dichtbij het recreatiegebied Rottemeren/Zevenhuizerplas en uitvalswegen gelegen 3-kamer appartement op de zesde verdieping met breed balkon op het zuiden. Gunstig gelegen t.o.v. winkels (Hesseplaats), recreatiemogelijkheden en openbaar vervoer. Deze woning is perfect voor wie durft te klussen.
Indeling:
Begane grond:
Ruime centrale hal met trapopgang, twee lif... Meer informatie
Indeling:
Begane grond:
Ruime centrale hal met trapopgang, twee lif... Meer informatie
-
Kenmerken Type object Appartement, galerijflat Bouwjaar 1968 Status Nieuw in verkoop Aangeboden sinds Woensdag 4 maart 2026 Alle kenmerken -
Kenmerken
| Referentienummer | 15247/10027562 |
| Vraagprijs | € 295.000,- k.k. |
| Status | Nieuw in verkoop |
| Aanvaarding | In overleg |
| Aangeboden sinds | Woensdag 4 maart 2026 |
| Laatste wijziging | Vrijdag 20 maart 2026 |
| Type object | Appartement, galerijflat |
| Woonlaag | 6e woonlaag |
| Soort bouw | Bestaande bouw |
| Bouwjaar | 1968 |
| Type dak | Platdak |
| Isolatievormen | Gedeeltelijk dubbel glas |
| Woonoppervlakte | 83 m² |
| Inhoud | 265 m³ |
| Oppervlakte gebouwgebonden buitenruimte | 10 m² |
| Aantal bouwlagen | 1 |
| Aantal kamers | 3 (waarvan 2 slaapkamers) |
| Ligging | In woonwijk Vrij uitzicht |
| Energielabel | B |
| Warm water | Elektrische boiler |
| Heeft een balkon | Ja |
| Heeft een lift | Ja |
| Heeft schuur/berging | Ja |
Beschrijving
In de groene wijk Ommoord, dichtbij het recreatiegebied Rottemeren/Zevenhuizerplas en uitvalswegen gelegen 3-kamer appartement op de zesde verdieping met breed balkon op het zuiden. Gunstig gelegen t.o.v. winkels (Hesseplaats), recreatiemogelijkheden en openbaar vervoer. Deze woning is perfect voor wie durft te klussen.
Indeling:
Begane grond:
Ruime centrale hal met trapopgang, twee liften, brievenbussen, bellentableau en bergingen.
Zesde verdieping:
Galerij met toegang tot woning, keukenblok aan voorzijde voorzien van een Daalderop elektrische boiler, meterkast, separate toiletruimte met fontein, licht betegelde badkamer met douchehoek, wastafel en wasmachineaansluiting, ruime inpandige berging, twee slaapkamers aan de voorzijde, woonkamer en mogelijkheid tot het realiseren van een derde slaapkamer aan de achterzijde. Vanuit de woonkamer een deur naar het woning brede balkon met ligging op het zonnige zuiden.
Bijzonderheden:
• Bouwjaar: 1968
• Woonoppervlakte circa 83 m2
• Balkon (zuiden) circa 10 m2
• Eigen berging op de begane grond
• Energielabel B
• Verwarming middels blokverwarming en warm water middels elektrische boiler (eigendom)
• Renovatie buitenkant van het complex in 2021
• Eigen grond
• Extra clausules in de koopakte; verkoper heeft de woning nooit bewoond, zelfbewoningsplicht en ouderdomsclausule
• Notariskeuze voorbehouden aan verkoper
• Bijdrage V.v.E. € 152,41 per maand
• Oplevering per direct
Deze presentatie is met zorg samengesteld. Desondanks kunnen aan deze presentatie geen rechten worden ontleend. Daarnaast aanvaardt de makelaar of zijn opdrachtgever geen aansprakelijkheid voor de in de presentatie verstrekte informatie. Mocht de presentatie vragen oproepen, dan nodigen wij u van harte uit deze onder onze aandacht te brengen.
Koopovereenkomst pas rechtsgeldig na ondertekening:
Een mondelinge overeenstemming tussen de particuliere verkoper en de particuliere koper is niet rechtsgeldig. Met andere woorden: er is geen koop. Er is pas sprake van een rechtsgeldige koop als de particuliere verkoper en de particuliere koper de koopovereenkomst hebben ondertekend. Dit vloeit voort uit artikel 7:2 Burgerlijk Wetboek. Een bevestiging van de mondelinge overeenstemming per e-mail of een toegestuurd concept van de koopovereenkomst wordt overigens niet gezien als een 'ondertekende koopovereenkomst'.
Toelichtingsclausule NEN2580:
De Meetinstructie is gebaseerd op de NEN2580. De Meetinstructie is bedoeld om een meer eenduidige manier van meten toe te passen voor het geven van een indicatie van de gebruiksoppervlakte. De Meetinstructie sluit verschillen in meetuitkomsten niet volledig uit, door bijvoorbeeld interpretatieverschillen, afrondingen of beperkingen bij het uitvoeren van de meting.
Indeling:
Begane grond:
Ruime centrale hal met trapopgang, twee liften, brievenbussen, bellentableau en bergingen.
Zesde verdieping:
Galerij met toegang tot woning, keukenblok aan voorzijde voorzien van een Daalderop elektrische boiler, meterkast, separate toiletruimte met fontein, licht betegelde badkamer met douchehoek, wastafel en wasmachineaansluiting, ruime inpandige berging, twee slaapkamers aan de voorzijde, woonkamer en mogelijkheid tot het realiseren van een derde slaapkamer aan de achterzijde. Vanuit de woonkamer een deur naar het woning brede balkon met ligging op het zonnige zuiden.
Bijzonderheden:
• Bouwjaar: 1968
• Woonoppervlakte circa 83 m2
• Balkon (zuiden) circa 10 m2
• Eigen berging op de begane grond
• Energielabel B
• Verwarming middels blokverwarming en warm water middels elektrische boiler (eigendom)
• Renovatie buitenkant van het complex in 2021
• Eigen grond
• Extra clausules in de koopakte; verkoper heeft de woning nooit bewoond, zelfbewoningsplicht en ouderdomsclausule
• Notariskeuze voorbehouden aan verkoper
• Bijdrage V.v.E. € 152,41 per maand
• Oplevering per direct
Deze presentatie is met zorg samengesteld. Desondanks kunnen aan deze presentatie geen rechten worden ontleend. Daarnaast aanvaardt de makelaar of zijn opdrachtgever geen aansprakelijkheid voor de in de presentatie verstrekte informatie. Mocht de presentatie vragen oproepen, dan nodigen wij u van harte uit deze onder onze aandacht te brengen.
Koopovereenkomst pas rechtsgeldig na ondertekening:
Een mondelinge overeenstemming tussen de particuliere verkoper en de particuliere koper is niet rechtsgeldig. Met andere woorden: er is geen koop. Er is pas sprake van een rechtsgeldige koop als de particuliere verkoper en de particuliere koper de koopovereenkomst hebben ondertekend. Dit vloeit voort uit artikel 7:2 Burgerlijk Wetboek. Een bevestiging van de mondelinge overeenstemming per e-mail of een toegestuurd concept van de koopovereenkomst wordt overigens niet gezien als een 'ondertekende koopovereenkomst'.
Toelichtingsclausule NEN2580:
De Meetinstructie is gebaseerd op de NEN2580. De Meetinstructie is bedoeld om een meer eenduidige manier van meten toe te passen voor het geven van een indicatie van de gebruiksoppervlakte. De Meetinstructie sluit verschillen in meetuitkomsten niet volledig uit, door bijvoorbeeld interpretatieverschillen, afrondingen of beperkingen bij het uitvoeren van de meting.